陶香堂ビルのテナント募集中区画
| 階数 | 面積 | 賃料(共益費含む) | 保証金 | 入居可能日 | 検討リスト | 詳細 |
|---|---|---|---|---|---|---|
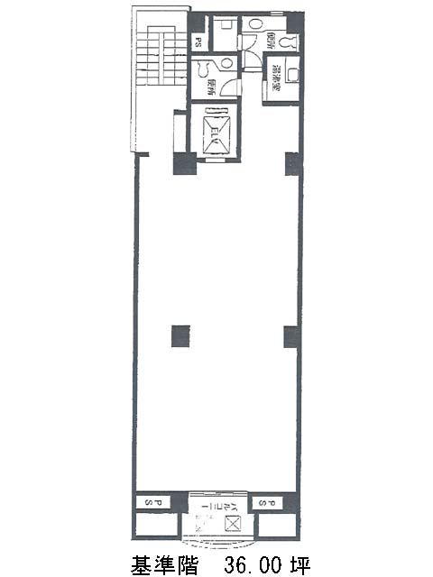
| 2 | 36.00坪 | 792,000円/月(22,000円/坪) | 388万円 | 即 |
…新着物件
アクセス
陶香堂ビルの物件情報
陶香堂ビル(港区赤坂)は赤坂見附駅(10番出口)から徒歩3分の賃貸オフィスです。陶香堂ビルは赤坂見附駅(10番出口)の他に永田町駅(8番出口)徒歩5分、赤坂駅(1番出口)徒歩6分で利用も可能です。

