赤坂フェニックスビル 2階
物件概要
物件番号
133-00858-20物件名
赤坂フェニックスビル所在地
- 東京都港区赤坂2-17-69
- アクセスマップ
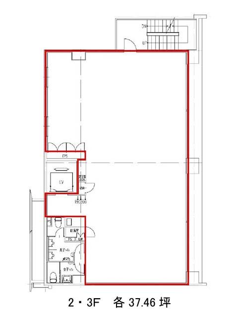
面積
37.46坪賃料(共益費含)
月額947,738円(25,300円/坪)
入居日
2026年5月上旬保証金
7,492,000円礼金
なし更新料
なし償却費
なし竣工
2008年1月構造
RC規模
地上7階トイレ
男女別空調
個別空調エレベーター
有セキュリティ
駐車場
無耐震
新耐震基準基準階天井高
2600mm空室延床面積
37.46坪情報更新日
2026/02/09赤坂フェニックスビルのテナント募集中区画
| 階数 | 面積 | 賃料(共益費含む) | 保証金 | 入居可能日 | 検討リスト | 詳細 |
|---|---|---|---|---|---|---|
| 2 | 37.46坪 | 947,738円/月(25,300円/坪) | 749万円 | 2026年5月上旬 |
…新着物件
赤坂フェニックスビルのアクセス
赤坂フェニックスビルの物件情報
赤坂フェニックスビル(港区赤坂)は赤坂駅(2番出口)から徒歩4分の賃貸オフィスです。赤坂フェニックスビルは赤坂駅(2番出口)の他に溜池山王駅(10番出口)徒歩6分、国会議事堂前駅(5番出口)徒歩7分で利用も可能です。

