赤坂フェニックスビルのテナント募集中区画
| 階数 | 面積 | 賃料(共益費含む) | 保証金 | 入居可能日 | 検討リスト | 詳細 |
|---|---|---|---|---|---|---|
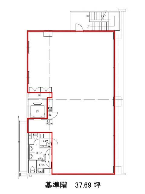
| 2 | 37.46坪 | 947,738円/月(25,300円/坪) | 749万円 | 2026年5月上旬 |
…新着物件
赤坂フェニックスビルのアクセス
赤坂フェニックスビルの物件情報
赤坂フェニックスビル(港区赤坂)は赤坂駅(2番出口)から徒歩4分の賃貸オフィスです。赤坂フェニックスビルは赤坂駅(2番出口)の他に溜池山王駅(10番出口)徒歩6分、国会議事堂前駅(5番出口)徒歩7分で利用も可能です。

