7階は現在募集がありません
1フロア募集区画あり

赤坂フェニックスビル 7階

前の写真 次の写真

物件概要

物件番号

133-00858-70

物件名

赤坂フェニックスビル

所在地

面積

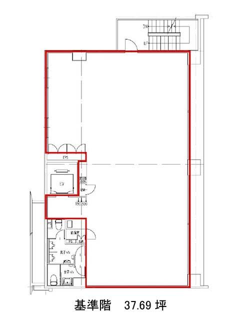
37.69坪

賃料(共益費含)


入居日

募集終了

保証金

礼金

更新料

償却費

竣工

2008年1月

構造

RC

規模

地上7階

トイレ

男女別

空調

個別空調

エレベーター

セキュリティ

駐車場

耐震

新耐震基準

基準階天井高

2600mm

空室延床面積

37.46坪

最寄駅

情報更新日

2026/04/07

赤坂フェニックスビルのテナント募集中区画

階数 面積 賃料(共益費含む) 保証金 入居可能日 検討リスト 詳細
2 37.46坪 947,738円/月(25,300円/坪) 749万円 2026年5月上旬
…新着物件

赤坂フェニックスビルのアクセス

赤坂フェニックスビルの物件情報

赤坂フェニックスビル(港区赤坂)は赤坂駅(2番出口)から徒歩4分の賃貸オフィスです。
赤坂フェニックスビルは赤坂駅(2番出口)の他に溜池山王駅(10番出口)徒歩6分、国会議事堂前駅(5番出口)徒歩7分で利用も可能です。

近隣のエリア・駅から探す