8階は現在募集がありません
AUSPICE赤坂 8階
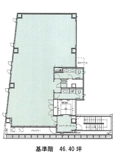
物件概要
AUSPICE赤坂のテナント募集中区画
現在、空室がございません。
AUSPICE赤坂のアクセス
AUSPICE赤坂の物件情報
AUSPICE赤坂(港区赤坂)は赤坂駅(7番出口)から徒歩3分の賃貸オフィスです。2008年竣工の物件ということもあり、建物自体が比較的綺麗です。外観は全体的にグレーを基調とした色合いで、デザイン性があるため、視認性が高いでしょう。エントランスやエレベーターホールはとても落ち着いた空間となっております。また周辺にはコンビニや飲食店、郵便局があるため、とても利便性が高いです。ビル内にはOAフロアが備えられており、トイレは男女別となっております。そして駐車場もあるため、社用車を使う場合も便利です。AUSPICE赤坂は赤坂駅(7番出口)の他に乃木坂駅(1番出口)徒歩9分、六本木駅(8番出口)徒歩11分で利用も可能です。

