15階は現在募集がありません
4フロア募集区画あり
アークヒルズフロントタワー 15階
物件概要
物件番号
133-00913-60物件名
アークヒルズフロントタワー所在地
- 東京都港区赤坂2-23-1
- アクセスマップ
面積
304.50坪賃料(共益費含)
−入居日
募集終了保証金
−礼金
−更新料
−償却費
−竣工
2011年1月構造
RC規模
地上22階/地下1階トイレ
男女別空調
個別空調エレベーター
有セキュリティ
駐車場
有耐震
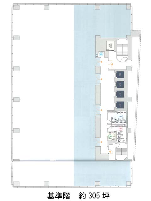
新耐震基準基準階天井高
2800mm空室延床面積
181.86坪情報更新日
2025/10/15アークヒルズフロントタワーのテナント募集中区画
| 階数 | 面積 | 賃料(共益費含む) | 保証金 | 入居可能日 | 検討リスト | 詳細 |
|---|---|---|---|---|---|---|
| 7 | 59.90坪 | 応相談(応相談) | 748万円 | 相談 | ||
| 9 | 30.30坪 | 1,144,000円/月(37,756円/坪) | 416万円 | 即 | ||
| 11 | 32.61坪 | 1,243,000円/月(38,117円/坪) | 452万円 | 相談 | ||
| 12 | 59.05坪 | 2,079,000円/月(35,207円/坪) | 756万円 | 相談 |
…新着物件
アクセス
アークヒルズフロントタワーの物件情報
アークヒルズフロントタワー(港区赤坂)は六本木一丁目駅(3番出口)から徒歩5分の賃貸オフィスです。地上22階・地下1階建てで2011年竣工の綺麗な物件です。外観は全体的にガラス張りになっており、建物自体もとても大きいため圧倒的存在感があります。エントランスホールやエレベーターホールはとても広々としており、開放感と高級感を感じられます。またビルの1階にはコンビニが入っているため、休憩時などに活用しやすいでしょう。ビル内にはOAフロアが備えられており、トイレは男女別となっております。アークヒルズフロントタワーは六本木一丁目駅(3番出口)の他に溜池山王駅(12番出口)徒歩5分、赤坂駅(5a番出口)徒歩7分で利用も可能です。

