第2富田ビルのテナント募集中区画
| 階数 | 面積 | 賃料(共益費含む) | 保証金 | 入居可能日 | 検討リスト | 詳細 |
|---|---|---|---|---|---|---|
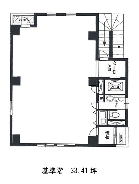
| 7 | 33.41坪 | 496,137円/月(14,850円/坪) | 270万円 | 即 |
…新着物件
アクセス
第2富田ビルの物件情報
第2富田ビル(港区東麻布)は赤羽橋駅(赤羽橋口)から徒歩3分の賃貸オフィスです。第2富田ビルは赤羽橋駅(赤羽橋口)の他に芝公園駅(A4番出口)徒歩7分、麻布十番駅(6番出口)徒歩10分で利用も可能です。

