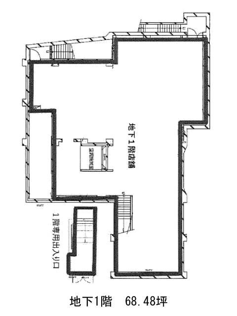
物件トップに戻る KDX南青山ビル 地下1階 このビルについて問い合わせる お電話でのお問い合わせ 0120-978-512 物件概要 物件番号 137-00120-111 物件名 KDX南青山ビル 所在地 東京都港区南青山5-13-3 アクセスマップ 面積 68.48坪 賃料(共益費含) :応相談 応相談 入居日 即 保証金 応相談 礼金 なし 更新料 なし 償却費 なし 竣工 1988年11月 構造 SRC 規模 地上9階/地下1階 トイレ 無 空調 個別空調 エレベーター 有 セキュリティ 有 駐車場 無 耐震 新耐震基準 基準階天井高 2380mm 空室延床面積 68.48坪 最寄駅 表参道駅 徒歩6分 情報更新日 2026/04/21 このビルについて問い合わせる お電話でのお問い合わせ 0120-978-512 KDX南青山ビルのテナント募集中区画 階数 面積 賃料(共益費含む) 保証金 入居可能日 検討リスト 詳細 地下1 68.48坪 応相談(応相談) 応相談 即 …新着物件 このビルについて問い合わせる お電話でのお問い合わせ 0120-978-512 KDX南青山ビルのアクセス KDX南青山ビルの物件情報 KDX南青山ビル(港区南青山)は表参道駅(B1番出口)から徒歩6分の賃貸オフィスです。 近隣のエリア・駅から探す 青山一丁目駅 外苑前駅 渋谷駅 田町・三田 赤坂・溜池山王