第45興和ビル 9階
物件概要
物件番号
137-00280-80物件名
第45興和ビル所在地
- 東京都港区南青山1-15-9
- アクセスマップ
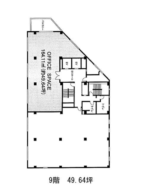
面積
49.64坪賃料(共益費含)
:応相談応相談
入居日
2026年1月上旬保証金
応相談礼金
なし更新料
なし償却費
なし竣工
1984年4月構造
SRC規模
地上9階/地下1階トイレ
男女別空調
個別空調エレベーター
有セキュリティ
有駐車場
有耐震
新耐震基準基準階天井高
2450mm空室延床面積
174.27坪情報更新日
2025/11/07第45興和ビルのテナント募集中区画
| 階数 | 面積 | 賃料(共益費含む) | 保証金 | 入居可能日 | 検討リスト | 詳細 |
|---|---|---|---|---|---|---|
| 2 | 124.63坪 | 応相談(応相談) | 応相談 | 2026年1月下旬 | ||
| 9 | 49.64坪 | 応相談(応相談) | 応相談 | 2026年1月上旬 |
…新着物件
アクセス
第45興和ビルの物件情報
第45興和ビル(港区南青山)は乃木坂駅(1番出口)から徒歩3分の賃貸オフィスです。1984年竣工、地上9階建てです。外観は全体的に落ち着いた色合いをしており、レトロなデザインとなっております。エントランスホールやエレベーターホールは清潔感があり、落ち着いた空間となっております。また周辺には、コンビニや飲食店、郵便局などがあるため、利便性が高いです。ビル内にはOAフロアが備えられており、トイレは男女別、セキュリティは機械警備を導入しているため、安心です。駐車場設備も備えられております。第45興和ビルは乃木坂駅(1番出口)の他に青山一丁目駅(4番出口)徒歩8分、六本木駅(8番出口)徒歩8分で利用も可能です。

