7階は現在募集がありません
1フロア募集区画あり

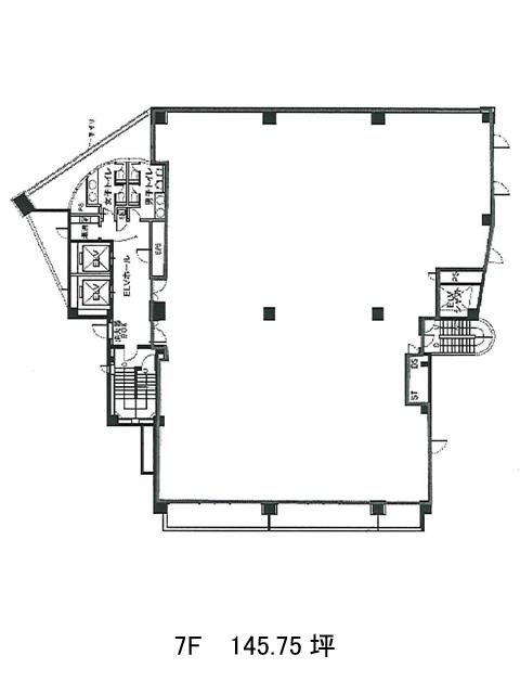
寿光ビル 7階

前の写真 次の写真

物件概要

物件番号

137-00441-60

物件名

寿光ビル

所在地

面積

145.75坪

賃料(共益費含)


入居日

募集終了

保証金

礼金

更新料

償却費

竣工

1996年3月

構造

SRC

規模

地上8階/地下1階

トイレ

男女別

空調

個別空調

エレベーター

セキュリティ

駐車場

耐震

新耐震基準

基準階天井高

2650mm

空室延床面積

144.75坪

最寄駅

情報更新日

2025/11/10

寿光ビルのテナント募集中区画

階数 面積 賃料(共益費含む) 保証金 入居可能日 検討リスト 詳細
3 144.75坪 3,821,400円/月(26,400円/坪) 2,895万円 2026年1月上旬
…新着物件

アクセス

寿光ビルの物件情報

寿光ビル(港区南青山)は乃木坂駅(3番出口)から徒歩1分の賃貸オフィスです。
南青山アドレスの視認性に優れた大通り沿い立地、ガラスと石材を組み合わせたスタイリッシュな外観も相まってビジネスの第一印象をスマートに演出します。
エントランスには曲線ガラスが美しいホテルライクな設えが広がり、落ち着きと上質さを両立。共用部の質感にもこだわりが感じられ、来訪者への印象形成にも好影響を与えてくれそうです。
基準階は約145坪とゆとりのある設計。室内には一部柱がありますが、ゾーニング次第で執務エリアとミーティングスペースを自然に切り分けるなど、レイアウトの自由度を高める要素として活かせるでしょう。
設備面もOAフロア、機械警備、男女別トイレ、EV2基などビジネス仕様をしっかり網羅。立地・建物グレード・機能性のバランスが整った一棟です。
寿光ビルは乃木坂駅(3番出口)の他に六本木駅(8番出口)徒歩6分、青山一丁目駅(4番出口)徒歩10分で利用も可能です。

近隣のエリア・駅から探す