南青山吉岡ビル 1階新着
物件概要
南青山吉岡ビルのテナント募集中区画
| 階数 | 面積 | 賃料(共益費含む) | 保証金 | 入居可能日 | 検討リスト | 詳細 |
|---|---|---|---|---|---|---|
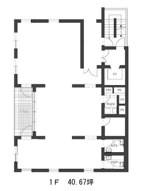
| 1 | 40.67坪 | 1,118,425円/月(27,500円/坪) | 955万円 | 相談 |
…新着物件
南青山吉岡ビルのアクセス
南青山吉岡ビルの物件情報
南青山吉岡ビル(港区南青山)は表参道駅(B1番出口)から徒歩7分の賃貸オフィスです。1990年竣工、地上3階地下1階建のビルです。外壁はレンガ張りで温かみのある雰囲気をしています。新耐震基準に適合しています。EV1基・男女別トイレ・給湯室があり、床はタイルカーペットとなります。間取りは、支柱が無くオフィス家具のレイアウトがしやすいでしょう。テラスがあり、リフレッシュスペースとしてご利用頂けます。周辺は低層階のマンションが多く、骨董通りの賑わいから離れ落ち着いた雰囲気のエリアとなります。南青山吉岡ビルは表参道駅(B1番出口)の他に渋谷駅(C1番出口)徒歩15分で利用も可能です。

