芝パークビル 地下1階
物件概要
物件番号
141-00193-73物件名
芝パークビル所在地
- 東京都港区浜松町2-1-15
- アクセスマップ
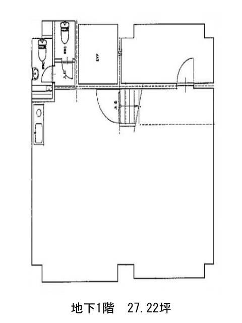
面積
27.22坪賃料(共益費含)
月額658,724円(24,200円/坪)
入居日
即保証金
6,532,800円礼金
なし更新料
新1ケ月償却費
2ケ月竣工
1989年12月構造
SRC規模
地上10階/地下1階トイレ
男女別空調
個別空調エレベーター
有セキュリティ
有駐車場
無耐震
新耐震基準基準階天井高
空室延床面積
131.22坪情報更新日
2025/11/11芝パークビルのテナント募集中区画
…新着物件
芝パークビルのアクセス
芝パークビルの物件情報
芝パークビル(港区浜松町)は大門駅(A1番出口)から徒歩2分の賃貸オフィスです。芝パークビルは大門駅(A1番出口)の他に浜松町駅(北口)徒歩4分、モノレール浜松町駅(中央口)徒歩5分で利用も可能です。

