3階は現在募集がありません
1フロア募集区画あり

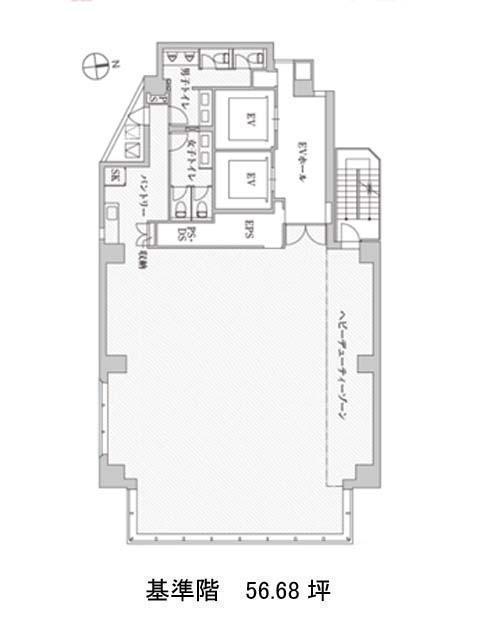
PMO浜松町 3階

前の写真 次の写真

物件概要

物件番号

141-00296-2

物件名

PMO浜松町

所在地

面積

56.68坪

賃料(共益費含)


入居日

募集終了

保証金

礼金

更新料

償却費

竣工

2018年11月

構造

規模

地上14階

トイレ

男女別

空調

エレベーター

セキュリティ

駐車場

耐震

新耐震基準

基準階天井高

2800mm

空室延床面積

56.85坪

最寄駅

情報更新日

2025/11/07

PMO浜松町のテナント募集中区画

階数 面積 賃料(共益費含む) 保証金 入居可能日 検討リスト 詳細
7 56.85坪 応相談(応相談) 応相談
…新着物件

アクセス

PMO浜松町の物件情報

PMO浜松町(港区浜松町)は浜松町駅(南口1)から徒歩2分の賃貸オフィスです。
駅至近という利便性に加え、羽田空港や品川方面へのアクセスもスムーズな立地が魅力。ビジネスの機動力を重視する企業にとって、交通環境の良さは見逃せないポイントです。
外観はガラス張りのファサードが目を引くスタイリッシュなデザイン。視認性が高く、来訪者に対しても洗練された印象を与えられます。ワンフロア約56坪の執務スペースは、柱のない整形空間で、家具の配置やレイアウトの自由度が高いのが特徴。天井高はゆとりある2,800mmで、開放感も十分です。
さらに、執務室の窓からは線路越しにダイナミックな景観が広がり、働きながら都心の動きを感じられる環境。ビル設備としてはOAフロア・男女別トイレ・給湯スペース・機械警備・駐車場などビジネスに必要な基本設備がしっかり揃っており、快適な業務環境をサポートします。
PMO浜松町は浜松町駅(南口1)の他にモノレール浜松町駅(中央口)徒歩3分、大門駅(B2番出口)徒歩4分で利用も可能です。

近隣のエリア・駅から探す