PMO浜松町のテナント募集中区画
| 階数 | 面積 | 賃料(共益費含む) | 保証金 | 入居可能日 | 検討リスト | 詳細 |
|---|---|---|---|---|---|---|
| 7 | 56.85坪 | 応相談(応相談) | 応相談 | 即 |
…新着物件
アクセス
PMO浜松町の物件情報
PMO浜松町(港区浜松町)は浜松町駅(南口1)から徒歩2分の賃貸オフィスです。駅至近という利便性に加え、羽田空港や品川方面へのアクセスもスムーズな立地が魅力。ビジネスの機動力を重視する企業にとって、交通環境の良さは見逃せないポイントです。
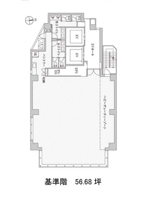
外観はガラス張りのファサードが目を引くスタイリッシュなデザイン。視認性が高く、来訪者に対しても洗練された印象を与えられます。ワンフロア約56坪の執務スペースは、柱のない整形空間で、家具の配置やレイアウトの自由度が高いのが特徴。天井高はゆとりある2,800mmで、開放感も十分です。
さらに、執務室の窓からは線路越しにダイナミックな景観が広がり、働きながら都心の動きを感じられる環境。ビル設備としてはOAフロア・男女別トイレ・給湯スペース・機械警備・駐車場などビジネスに必要な基本設備がしっかり揃っており、快適な業務環境をサポートします。PMO浜松町は浜松町駅(南口1)の他にモノレール浜松町駅(中央口)徒歩3分、大門駅(B2番出口)徒歩4分で利用も可能です。

