5階 A棟は現在募集がありません
2フロア募集区画あり

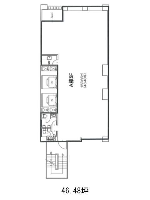
ミヤヒロビル 5階 A棟

前の写真 次の写真

物件概要

物件番号

142-00124-104

物件名

ミヤヒロビル

所在地

面積

46.48坪

賃料(共益費含)


入居日

募集終了

保証金

礼金

更新料

償却費

竣工

1981年3月

構造

SRC

規模

地上10階/地下1階

トイレ

男女別

空調

個別空調

エレベーター

セキュリティ

駐車場

耐震

耐震補強済み

基準階天井高

空室延床面積

72.45坪

最寄駅

情報更新日

2026/03/10

ミヤヒロビルのテナント募集中区画

階数 面積 賃料(共益費含む) 保証金 入居可能日 検討リスト 詳細
1 25.97坪 1,428,350円/月(55,000円/坪) 1,558万円
9 46.48坪 1,533,840円/月(33,000円/坪) 1,231万円
…新着物件

ミヤヒロビルのアクセス

ミヤヒロビルの物件情報

ミヤヒロビル(港区北青山)は表参道駅(A3番出口)から徒歩3分の賃貸オフィスです。
ミヤヒロビルは表参道駅(A3番出口)の他に外苑前駅(3番出口)徒歩8分、明治神宮前駅(出口1)徒歩12分で利用も可能です。

近隣のエリア・駅から探す