ミヤヒロビル 9階 A棟
物件概要
ミヤヒロビルのテナント募集中区画
| 階数 | 面積 | 賃料(共益費含む) | 保証金 | 入居可能日 | 検討リスト | 詳細 |
|---|---|---|---|---|---|---|
| 1 | 25.97坪 | 1,428,350円/月(55,000円/坪) | 1,558万円 | 即 | ||
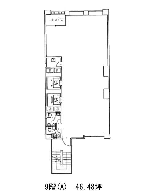
| 9 | 46.48坪 | 1,533,840円/月(33,000円/坪) | 1,231万円 | 即 |
…新着物件
ミヤヒロビルのアクセス
ミヤヒロビルの物件情報
ミヤヒロビル(港区北青山)は表参道駅(A3番出口)から徒歩3分の賃貸オフィスです。ミヤヒロビルは表参道駅(A3番出口)の他に外苑前駅(3番出口)徒歩8分、明治神宮前駅(出口1)徒歩12分で利用も可能です。

