六本木ヒルズノースタワー 15階
物件概要
物件番号
147-00117-180物件名
六本木ヒルズノースタワー所在地
- 東京都港区六本木6-2-31
- アクセスマップ
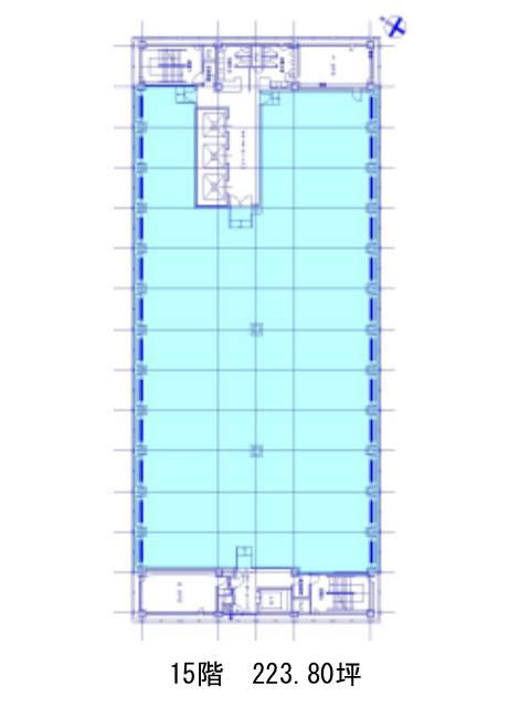
面積
223.80坪賃料(共益費含)
:応相談応相談
入居日
2025年12月上旬保証金
応相談礼金
なし更新料
なし償却費
なし竣工
1971年1月構造
規模
地上18階/地下4階トイレ
男女別空調
セントラルエレベーター
有セキュリティ
駐車場
有耐震
耐震補強済み基準階天井高
2450mm空室延床面積
532.20坪情報更新日
2025/12/01六本木ヒルズノースタワーのテナント募集中区画
| 階数 | 面積 | 賃料(共益費含む) | 保証金 | 入居可能日 | 検討リスト | 詳細 |
|---|---|---|---|---|---|---|
| 3 | 84.80坪 | 応相談(応相談) | 応相談 | 2026年5月上旬 | ||
| 14 | 223.60坪 | 応相談(応相談) | 応相談 | 相談 | ||
| 15 | 223.80坪 | 応相談(応相談) | 応相談 | 2025年12月上旬 |
…新着物件
アクセス
六本木ヒルズノースタワーの物件情報
六本木ヒルズノースタワー(港区六本木)は六本木駅(1b番出口)から徒歩1分の賃貸オフィスです。地上18階地下4階建て(耐震補強済み)。利便性と品格を兼ね備えたランドマーク的存在のビルです。
最大の特長は、駅直結というアクセス環境。天候に左右されることなく、取引先との移動や通勤がスムーズに行える点は、社員にも来訪者にも大きなメリットです。また、1フロア最大200坪超という広さを誇りながら、区画の分割にも柔軟に対応しているため、小規模〜中規模のテナントにも使い勝手の良い設計となっています。
敷地内にはカフェやショップが並び、ちょっとした打ち合わせや休憩にも便利な環境が整っており、日々の業務をサポートする安心感があります。ハイグレードな設備と六本木の都市機能を享受できる点でも、企業イメージの向上に一役買いそうです。六本木ヒルズノースタワーは六本木駅(1b番出口)の他に乃木坂駅(5番出口)徒歩11分、麻布十番駅(7番出口)徒歩12分で利用も可能です。

