7階は現在募集がありません
3フロア募集区画あり

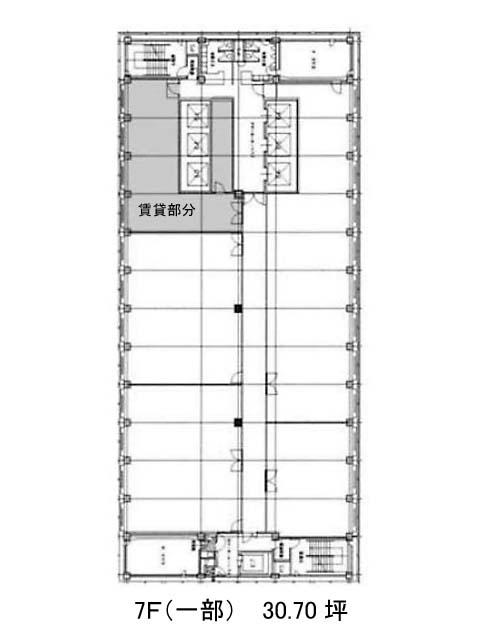
六本木ヒルズノースタワー 7階

前の写真 次の写真

物件概要

物件番号

147-00117-191

物件名

六本木ヒルズノースタワー

所在地

面積

30.70坪

賃料(共益費含)


入居日

募集終了

保証金

礼金

更新料

償却費

竣工

1971年1月

構造

規模

地上18階/地下4階

トイレ

男女別

空調

セントラル

エレベーター

セキュリティ

駐車場

耐震

耐震補強済み

基準階天井高

2450mm

空室延床面積

288.20坪

最寄駅

情報更新日

2026/04/02

六本木ヒルズノースタワーのテナント募集中区画

階数 面積 賃料(共益費含む) 保証金 入居可能日 検討リスト 詳細
7 41.40坪 応相談(応相談) 応相談 相談
7 23.20坪 応相談(応相談) 応相談 相談
14 223.60坪 応相談(応相談) 応相談 2026年10月上旬
…新着物件

六本木ヒルズノースタワーのアクセス

六本木ヒルズノースタワーの物件情報

六本木ヒルズノースタワー(港区六本木)は六本木駅(1b番出口)から徒歩1分の賃貸オフィスです。
地上18階地下4階建て(耐震補強済み)。利便性と品格を兼ね備えたランドマーク的存在のビルです。
最大の特長は、駅直結というアクセス環境。天候に左右されることなく、取引先との移動や通勤がスムーズに行える点は、社員にも来訪者にも大きなメリットです。また、1フロア最大200坪超という広さを誇りながら、区画の分割にも柔軟に対応しているため、小規模〜中規模のテナントにも使い勝手の良い設計となっています。
敷地内にはカフェやショップが並び、ちょっとした打ち合わせや休憩にも便利な環境が整っており、日々の業務をサポートする安心感があります。ハイグレードな設備と六本木の都市機能を享受できる点でも、企業イメージの向上に一役買いそうです。
六本木ヒルズノースタワーは六本木駅(1b番出口)の他に乃木坂駅(5番出口)徒歩11分、麻布十番駅(7番出口)徒歩12分で利用も可能です。

近隣のエリア・駅から探す