5階は現在募集がありません
鶯ビル 5階
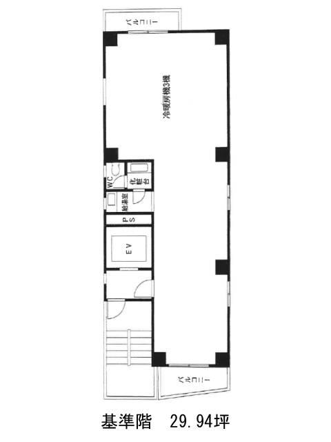
物件概要
鶯ビルのテナント募集中区画
現在、空室がございません。
アクセス
鶯ビルの物件情報
鶯ビル(港区六本木)は六本木駅(5番出口)から徒歩4分の賃貸オフィスです。鶯ビルは六本木駅(5番出口)の他に六本木一丁目駅(2番出口)徒歩7分、麻布十番駅(7番出口)徒歩10分で利用も可能です。

