マガジンハウス六本木ビルのテナント募集中区画
| 階数 | 面積 | 賃料(共益費含む) | 保証金 | 入居可能日 | 検討リスト | 詳細 |
|---|---|---|---|---|---|---|
| 2 | 45.06坪 | 応相談(応相談) | 応相談 | 即 |
…新着物件
マガジンハウス六本木ビルのアクセス
マガジンハウス六本木ビルの物件情報
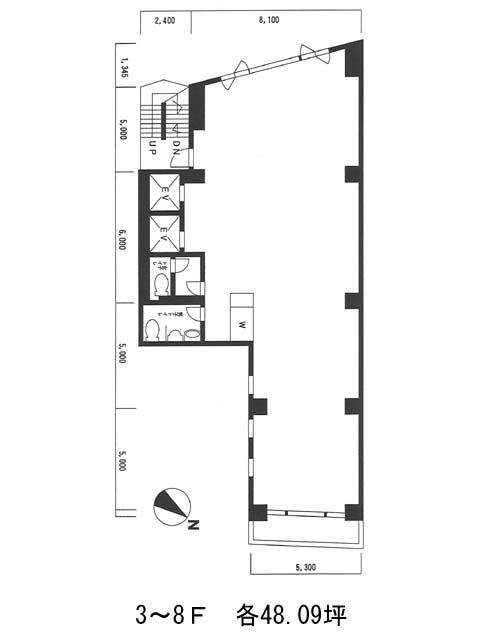
マガジンハウス六本木ビル(港区六本木)は六本木駅(5番出口)から徒歩3分の賃貸オフィスです。外観は全体的にグレーを基調とした色合いで、とてもスタイリッシュな印象があります。エントランスホールやエレベーターホールは広々としており、開放感を感じられます。また周辺にはコンビニや飲食店があるため、ランチも楽しめるでしょう。ビル内にはOAフロアが備えられている場所もあり、個別空調も完備、トイレも男女別となっているため設備面は充実しております。そして基準階は約48坪あり、室内はほぼ長方形の形をしているため、比較的レイアウトは組みやすいでしょう。マガジンハウス六本木ビルは六本木駅(5番出口)の他に六本木一丁目駅(2番出口)徒歩9分、乃木坂駅(3番出口)徒歩11分で利用も可能です。

