7階 新702は現在募集がありません
3フロア募集区画あり
ほうらいやビル 7階 新702
物件概要
物件番号
147-00021-80物件名
ほうらいやビル所在地
- 東京都港区六本木5-2-1
- アクセスマップ
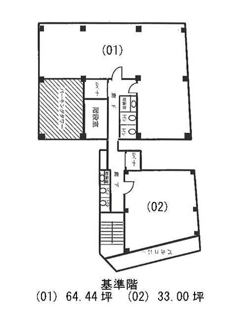
面積
33.00坪賃料(共益費含)
−入居日
募集終了保証金
−礼金
−更新料
−償却費
−竣工
1972年9月構造
SRC規模
地上9階/地下1階トイレ
男女別空調
個別空調エレベーター
有セキュリティ
有駐車場
有耐震
旧耐震基準基準階天井高
2450-2550mm空室延床面積
99.97坪情報更新日
2026/04/01ほうらいやビルのテナント募集中区画
| 階数 | 面積 | 賃料(共益費含む) | 保証金 | 入居可能日 | 検討リスト | 詳細 |
|---|---|---|---|---|---|---|
| 3 | 33.00坪 | 770,000円/月(23,334円/坪) | 420万円 | 即 | ||
| 4 | 33.00坪 | 770,031円/月(23,334円/坪) | 420万円 | 即 | ||
| 6 | 33.97坪 | 946,000円/月(27,848円/坪) | 516万円 | 相談 |
…新着物件
ほうらいやビルのアクセス
ほうらいやビルの物件情報
ほうらいやビル(港区六本木)は六本木駅(5番出口)から徒歩3分の賃貸オフィスです。ほうらいやビルは六本木駅(5番出口)の他に六本木一丁目駅(2番出口)徒歩9分、乃木坂駅(3番出口)徒歩11分で利用も可能です。

