3階は現在募集がありません

六本木MYビル 3階

前の写真 次の写真

物件概要

物件番号

147-00211-20

物件名

六本木MYビル

所在地

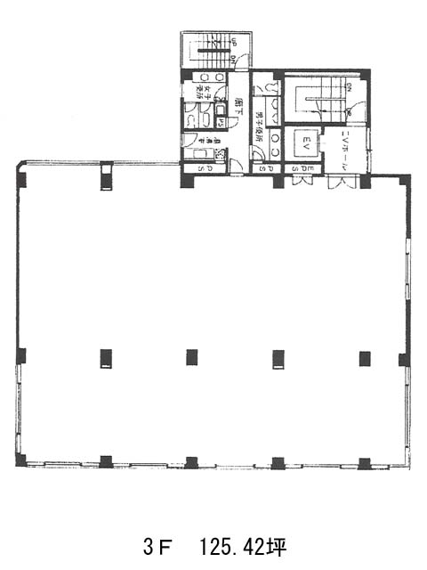
面積

125.42坪

賃料(共益費含)


入居日

募集終了

保証金

礼金

更新料

償却費

竣工

1989年6月

構造

RC

規模

地上4階

トイレ

男女別

空調

個別空調

エレベーター

セキュリティ

駐車場

耐震

新耐震基準

基準階天井高

2550mm

空室延床面積

最寄駅

情報更新日

2024/07/31

六本木MYビルのテナント募集中区画

現在、空室がございません。

アクセス

六本木MYビルの物件情報

六本木MYビル(港区六本木)は六本木一丁目駅(3番出口)から徒歩3分の賃貸オフィスです。
1989年竣工、地上4階建RC造のビルです。淡いクリーム色のタイル張りの外壁で明るい外観をしています。共用部も白を基調とした内装で清潔感が漂います。フロアの一箇所に共用部がまとめられており、オフィスを効率よく使えるでしょう。設備仕様として、EV・駐車場・個別空調(天井カセット式エアコン)・貸室外の男女別トイレ・OAフロアがあります。セキュリティとして安心の機械警備が付帯しています。室内への出入口が複数あり、動線の自由度が高まるでしょう。
六本木MYビルは六本木一丁目駅(3番出口)の他に溜池山王駅(12番出口)徒歩6分、赤坂駅(5a番出口)徒歩9分で利用も可能です。

近隣のエリア・駅から探す