全特六本木ビルEAST 地下1階
物件概要
物件番号
147-00343-72物件名
全特六本木ビルEAST所在地
- 東京都港区六本木1-7-27
- アクセスマップ
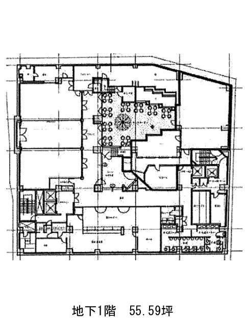
面積
55.59坪賃料(共益費含)
月額917,235円(16,500円/坪)
入居日
2026年1月上旬保証金
8,338,500円礼金
なし更新料
なし償却費
なし竣工
1992年1月構造
SRC規模
地上9階/地下2階トイレ
男女別空調
個別空調エレベーター
有セキュリティ
有駐車場
有耐震
新耐震基準基準階天井高
2450mm空室延床面積
119.79坪情報更新日
2025/12/01全特六本木ビルEASTのテナント募集中区画
| 階数 | 面積 | 賃料(共益費含む) | 保証金 | 入居可能日 | 検討リスト | 詳細 |
|---|---|---|---|---|---|---|
| 地下1 | 55.59坪 | 917,235円/月(16,500円/坪) | 833万円 | 2026年1月上旬 | ||
| 3 | 64.20坪 | 1,553,640円/月(24,200円/坪) | 1,412万円 | 2026年4月上旬 |
…新着物件
アクセス
全特六本木ビルEASTの物件情報
全特六本木ビルEAST(港区六本木)は六本木一丁目駅(2番出口)から徒歩2分の賃貸オフィスです。重厚感のある石張りの外観とホテルライクなエントランスが印象的なオフィスビル。館内は高級感ある内装で統一され、来訪者に対しても企業の信頼感を自然に演出できます。貸室は中規模サイズが中心で、OAフロア・個別空調・男女別トイレ・機械警備など、快適かつ安心して働ける基本設備をしっかり完備。敷地内には郵便局が併設されており、日々の業務においても利便性の高い環境が整っています。さらに、駅出口至近という好立地も大きな魅力のひとつ。通勤はもちろん、外出や来客対応もスムーズに行える点は、業務効率を重視する企業にとって見逃せないポイントです。全特六本木ビルEASTは六本木一丁目駅(2番出口)の他に神谷町駅(2番出口)徒歩9分、溜池山王駅(13番出口)徒歩9分で利用も可能です。

