14階は現在募集がありません
1フロア募集区画あり
アークヒルズサウスタワー 14階
物件概要
物件番号
147-00504-110物件名
アークヒルズサウスタワー所在地
- 東京都港区六本木1-4-5
- アクセスマップ
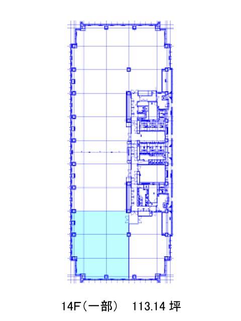
面積
113.14坪賃料(共益費含)
−入居日
募集終了保証金
−礼金
−更新料
−償却費
−竣工
2013年8月構造
S造規模
地上20階/地下3階トイレ
男女別空調
セントラルエレベーター
有セキュリティ
有駐車場
有耐震
新耐震基準基準階天井高
2900~3000mm空室延床面積
39.00坪情報更新日
2025/11/05アークヒルズサウスタワーのテナント募集中区画
| 階数 | 面積 | 賃料(共益費含む) | 保証金 | 入居可能日 | 検討リスト | 詳細 |
|---|---|---|---|---|---|---|
| 3 | 39.00坪 | 応相談(応相談) | 応相談 | 相談 |
…新着物件
アクセス
アークヒルズサウスタワーの物件情報
アークヒルズサウスタワー(港区六本木)は六本木一丁目駅(3番出口)から徒歩2分の賃貸オフィスです。2013年竣工の物件ということもあり、建物自体が比較的綺麗です。エントランスホールやエレベーターホールはとても広々としており、開放感と高級感を感じられます。ビル内にはOAフロアも備えられており、個別空調も完備していて、トイレも男女別となっているため設備面は充実しております。駐車場も完備してあるため、車の利用もしやすい環境となっております。そしてセキュリティは機械警備を導入していて、耐震性も新耐震基準であるため、安心です。アークヒルズサウスタワーは六本木一丁目駅(3番出口)の他に溜池山王駅(13番出口)徒歩6分、神谷町駅(4A番出口)徒歩10分で利用も可能です。

