3階は現在募集がありません
3フロア募集区画あり

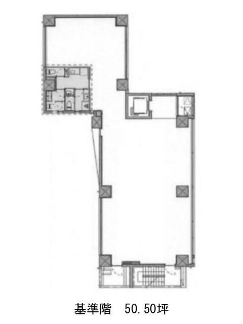
六本木三幸ビル 3階

前の写真 次の写真

物件概要

物件番号

147-00583-3

物件名

六本木三幸ビル

所在地

面積

50.50坪

賃料(共益費含)


入居日

募集終了

保証金

礼金

更新料

償却費

竣工

2021年10月

構造

RC

規模

地上9階

トイレ

男女別

空調

個別空調

エレベーター

セキュリティ

駐車場

耐震

新耐震基準

基準階天井高

2600mm

空室延床面積

148.57坪

最寄駅

情報更新日

2026/02/03

六本木三幸ビルのテナント募集中区画

階数 面積 賃料(共益費含む) 保証金 入居可能日 検討リスト 詳細
1 47.57坪 1,831,445円/月(38,500円/坪) 1,664万円 相談
4 50.50坪 968,000円/月(19,168円/坪) 528万円 2026年4月上旬
5 50.50坪 968,000円/月(19,168円/坪) 528万円 2026年4月中旬
…新着物件

六本木三幸ビルのアクセス

六本木三幸ビルの物件情報

六本木三幸ビル(港区六本木)は六本木一丁目駅(出口)から徒歩3分の賃貸オフィスです。
2021年竣工の物件ということもあり、建物自体はとても綺麗です。外観は全体的にベージュを基調とした色合いで、窓がライン状に並んでいるため、とても統一感があり、視認性が高いでしょう。基準階面積は約50坪。ビル内にはOAフロアも備えられており、トイレは男女別となっております。セキュリティは機械警備やオートロックシステムを導入していて、耐震性も新耐震基準に適合しているので安心してご入居いただけます。また周辺にはコンビニや飲食店などが複数あるため、ランチも楽しめるでしょう。
六本木三幸ビルは六本木一丁目駅(出口)の他に六本木駅(5番出口)徒歩6分、溜池山王駅(13番出口)徒歩9分で利用も可能です。

近隣のエリア・駅から探す