いちご渋谷道玄坂ビル 1階
物件概要
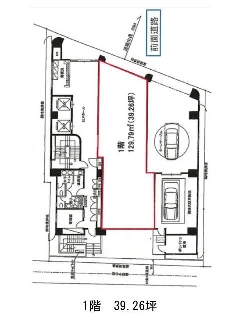
いちご渋谷道玄坂ビルのテナント募集中区画
| 階数 | 面積 | 賃料(共益費含む) | 保証金 | 入居可能日 | 検討リスト | 詳細 |
|---|---|---|---|---|---|---|
| 1 | 39.26坪 | 1,943,370円/月(49,500円/坪) | 応相談 | 即 | ||
| 4 | 61.39坪 | 応相談(応相談) | 応相談 | 即 |
…新着物件
いちご渋谷道玄坂ビルのアクセス
いちご渋谷道玄坂ビルの物件情報
いちご渋谷道玄坂ビル(渋谷区円山町)は神泉駅(北口)から徒歩4分の賃貸オフィスです。1994年竣工、渋谷・道玄坂エリアに立地する地上9階・地下2階建てのオフィスビル。鉄骨鉄筋コンクリート造(SRC)で新耐震基準に適合し、安心感のある構造です。玉川通り沿い、道玄坂上交差点付近に位置し、視認性に優れたロケーションも特徴のひとつ。基準階は約100坪、天井高2,600mmの無柱設計で、自由度の高いレイアウトが可能です。各階に個別空調を備え、OAフロアや光ファイバーにも対応。共用部には男女別トイレ、エレベーターは2基設置され、機械式駐車場も利用可能です。セキュリティには機械警備を導入し、24時間の利用にも対応。周辺には飲食店やコンビニが充実しており、ビジネスパーソンにとって使い勝手のよい環境です。渋谷マークシティを経由して渋谷駅方面へもスムーズにアクセスできる立地です。いちご渋谷道玄坂ビルは神泉駅(北口)の他に渋谷駅(西口)徒歩7分で利用も可能です。

