7階は現在募集がありません
2フロア募集区画あり

恵比寿ネオナートアネックス 7階

前の写真 次の写真

物件概要

物件番号

159-00253-70

物件名

恵比寿ネオナートアネックス

所在地

面積

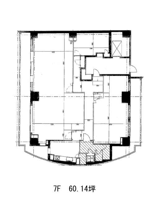
60.14坪

賃料(共益費含)


入居日

募集終了

保証金

礼金

更新料

償却費

竣工

1994年1月

構造

SRC

規模

地上 7階/地下1階

トイレ

男女別

空調

個別空調

エレベーター

セキュリティ

駐車場

耐震

新耐震基準

基準階天井高

2500mm

空室延床面積

60.14坪

最寄駅

情報更新日

2026/04/06

恵比寿ネオナートアネックスのテナント募集中区画

階数 面積 賃料(共益費含む) 保証金 入居可能日 検討リスト 詳細
3 23.11坪 応相談(応相談) 応相談
6 37.03坪 応相談(応相談) 応相談
…新着物件

恵比寿ネオナートアネックスのアクセス

恵比寿ネオナートアネックスの物件情報

恵比寿ネオナートアネックス(渋谷区恵比寿)は恵比寿駅(東口)から徒歩3分の賃貸オフィスです。
恵比寿ネオナートアネックスは恵比寿駅(東口)の他に代官山駅(東口)徒歩14分で利用も可能です。

近隣のエリア・駅から探す