NSビル 6階
物件概要
物件番号
160-00058-50物件名
NSビル所在地
- 東京都渋谷区恵比寿西2-3-2
- アクセスマップ
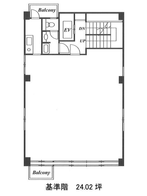
面積
24.02坪賃料(共益費含)
月額615,001円(25,604円/坪)
入居日
2026年4月上旬保証金
2,036,416円礼金
1ケ月更新料
新1ケ月償却費
1ケ月竣工
1984年2月構造
RC規模
地上8階トイレ
男女別空調
個別空調エレベーター
有セキュリティ
駐車場
無耐震
新耐震基準基準階天井高
2400mm空室延床面積
24.02坪情報更新日
2026/02/03NSビルのテナント募集中区画
| 階数 | 面積 | 賃料(共益費含む) | 保証金 | 入居可能日 | 検討リスト | 詳細 |
|---|---|---|---|---|---|---|
| 6 | 24.02坪 | 615,001円/月(25,604円/坪) | 203万円 | 2026年4月上旬 |
…新着物件
NSビルのアクセス
NSビルの物件情報
NSビル(渋谷区恵比寿西)は恵比寿駅(2番出口)から徒歩5分の賃貸オフィスです。NSビルは恵比寿駅(2番出口)の他に代官山駅(北口)徒歩9分、渋谷駅(新南口)徒歩10分で利用も可能です。

