NSビルのテナント募集中区画
| 階数 | 面積 | 賃料(共益費含む) | 保証金 | 入居可能日 | 検討リスト | 詳細 |
|---|---|---|---|---|---|---|
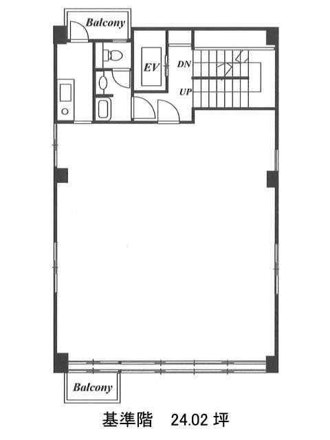
| 6 | 24.02坪 | 615,001円/月(25,604円/坪) | 203万円 | 2026年4月上旬 |
…新着物件
アクセス
NSビルの物件情報
NSビル(渋谷区恵比寿西)は恵比寿駅(2番出口)から徒歩5分の賃貸オフィスです。NSビルは恵比寿駅(2番出口)の他に代官山駅(北口)徒歩9分、渋谷駅(新南口)徒歩10分で利用も可能です。

