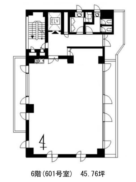
池田ビル 6階 601新着
物件概要
池田ビルのテナント募集中区画
| 階数 | 面積 | 賃料(共益費含む) | 保証金 | 入居可能日 | 検討リスト | 詳細 |
|---|---|---|---|---|---|---|
| 6 | 45.76坪 | 1,182,896円/月(25,850円/坪) | 549万円 | 即 |
…新着物件
池田ビルのアクセス
池田ビルの物件情報
池田ビル(渋谷区桜丘町)は渋谷駅(西口)から徒歩6分の賃貸オフィスです。池田ビルは渋谷駅(西口)の他に代官山駅(北口)徒歩12分、神泉駅(北口)徒歩12分で利用も可能です。

