渋谷野村證券ビル 7階
物件概要
渋谷野村證券ビルのテナント募集中区画
| 階数 | 面積 | 賃料(共益費含む) | 保証金 | 入居可能日 | 検討リスト | 詳細 |
|---|---|---|---|---|---|---|
| 6 | 113.42坪 | 応相談(応相談) | 応相談 | 即 | ||
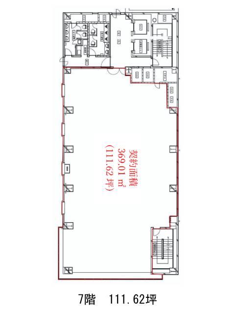
| 7 | 111.62坪 | 応相談(応相談) | 応相談 | 即 | ||
| 8 | 114.23坪 | 応相談(応相談) | 応相談 | 即 | ||
| 9 | 37.56坪 | 応相談(応相談) | 応相談 | 即 |
…新着物件
渋谷野村證券ビルのアクセス
渋谷野村證券ビルの物件情報
渋谷野村證券ビル(渋谷区渋谷)は渋谷駅(20a番出口)から徒歩1分の賃貸オフィスです。1981年11月竣工、地上9階・地下1階建ての鉄骨鉄筋コンクリート造(SRC)オフィスビルで、新耐震基準に適合しています。基準階は100坪超の広さを確保しており、柱のない設計によりレイアウトの自由度が高く、柔軟な空間づくりが可能です。床はOAフロア仕様で、配線計画にも対応しやすい構造です。空調は各テナントごとの個別制御が可能で、執務環境の快適さを支えます。エレベーターは2基、セキュリティは機械警備と有人警備を併用した24時間体制。敷地内には20台以上の駐車スペースも備えられています。
明治通り沿いの角地に立地し、視認性に優れ、渋谷駅から徒歩2分というアクセスの良さも魅力のひとつ。周辺には銀行や郵便局、飲食店、カフェなどが揃っており、日常業務から来客対応までスムーズに行える、利便性の高いビジネス環境です。
渋谷野村證券ビルは渋谷駅(20a番出口)の他に表参道駅(B2番出口)徒歩13分、明治神宮前駅(7番出口)徒歩13分で利用も可能です。

