松涛栄光ビル 2階新着
物件概要
物件番号
168-00001-20物件名
松涛栄光ビル所在地
- 東京都渋谷区松濤1-1-3
- アクセスマップ
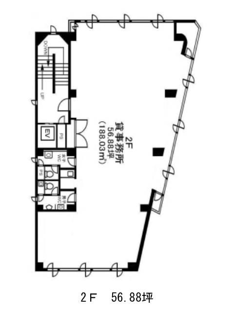
面積
56.88坪賃料(共益費含)
月額1,126,224円(19,800円/坪)
入居日
2026年4月中旬保証金
5,119,200円礼金
なし更新料
なし償却費
10%竣工
1985年11月構造
RC規模
地上6階トイレ
男女別空調
個別空調エレベーター
有セキュリティ
有駐車場
無耐震
新耐震基準基準階天井高
空室延床面積
110.63坪情報更新日
2026/04/03松涛栄光ビルのテナント募集中区画
| 階数 | 面積 | 賃料(共益費含む) | 保証金 | 入居可能日 | 検討リスト | 詳細 |
|---|---|---|---|---|---|---|
| 2 | 56.88坪 | 1,126,224円/月(19,800円/坪) | 511万円 | 2026年4月中旬 | ||
| 3 | 53.75坪 | 1,064,250円/月(19,800円/坪) | 483万円 | 2026年4月中旬 |
…新着物件
松涛栄光ビルのアクセス
松涛栄光ビルの物件情報
松涛栄光ビル(渋谷区松濤)は渋谷駅(A2番出口)から徒歩7分の賃貸オフィスです。松涛栄光ビルは渋谷駅(A2番出口)の他に神泉駅(北口)徒歩10分、代々木公園駅(2番出口)徒歩11分で利用も可能です。

