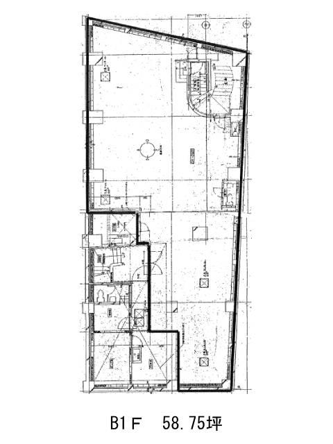
テラアシオス青山 地下1階
物件概要
物件番号
170-00011-10物件名
テラアシオス青山所在地
- 東京都渋谷区神宮前5-51-6
- アクセスマップ
面積
58.75坪賃料(共益費含)
月額1,938,750円(33,000円/坪)
入居日
相談保証金
21,150,000円礼金
1ケ月更新料
なし償却費
20%竣工
1989年1月構造
SRC規模
地上10階/地下1階トイレ
男女共用空調
個別空調エレベーター
有セキュリティ
有駐車場
無耐震
新耐震基準基準階天井高
空室延床面積
92.75坪情報更新日
2026/01/29テラアシオス青山のテナント募集中区画
| 階数 | 面積 | 賃料(共益費含む) | 保証金 | 入居可能日 | 検討リスト | 詳細 |
|---|---|---|---|---|---|---|
| 地下1 | 58.75坪 | 1,938,750円/月(33,000円/坪) | 2,115万円 | 相談 | ||
| 5 | 34.00坪 | 935,000円/月(27,500円/坪) | 850万円 | 2026年6月中旬 |
…新着物件
テラアシオス青山のアクセス
テラアシオス青山の物件情報
テラアシオス青山(渋谷区神宮前)は表参道駅(B2番出口)から徒歩3分の賃貸オフィスです。青山通り沿いの角地に立地する賃貸オフィスビルです。1989年竣工・地上10階建てのスリムでスタイリッシュな外観が印象的で、新耐震基準にも適合。1フロア約34坪の使いやすい整形区画はワンフロア専有型で、レイアウトの自由度が高く、業種を問わず幅広い企業に対応します。
設備面では、個別空調・OAフロア・光ファイバー対応・男女別トイレ(共用部)などを完備。加えて機械警備による24時間利用も可能で、フレキシブルな働き方にもフィットします。視認性の高い角地立地は、来訪者の誘導やブランディングにも効果的です。
周辺には渋谷郵便局や金融機関、カフェ、飲食店も充実しており、日常業務から来客対応まで快適に行える環境が整っています。神宮前エリアで、利便性とデザイン性の両立を重視する企業に適した一棟です。テラアシオス青山は表参道駅(B2番出口)の他に明治神宮前駅(出口1)徒歩11分、渋谷駅(B1番出口)徒歩11分で利用も可能です。

