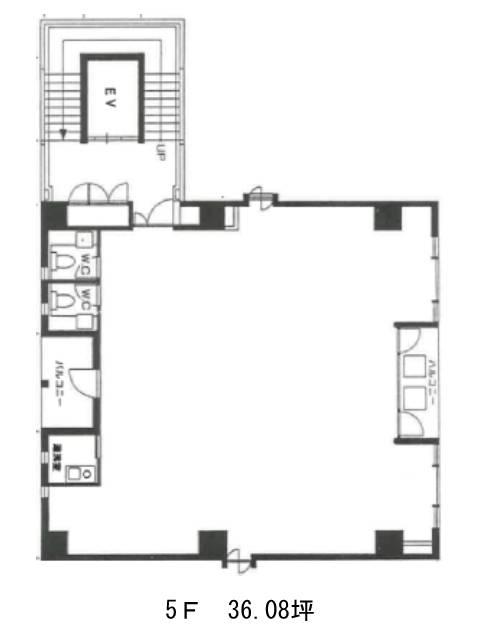
並木ビル 5階
物件概要
並木ビルのテナント募集中区画
| 階数 | 面積 | 賃料(共益費含む) | 保証金 | 入居可能日 | 検討リスト | 詳細 |
|---|---|---|---|---|---|---|
| 5 | 36.08坪 | 応相談(応相談) | 432万円 | 2026年1月 |
…新着物件
アクセス
並木ビルの物件情報
並木ビル(渋谷区神山町)は代々木公園駅(2番出口)から徒歩6分の賃貸オフィスです。並木ビルは代々木公園駅(2番出口)の他に代々木八幡駅(南口改札口)徒歩9分、渋谷駅(A2番出口)徒歩11分で利用も可能です。

