2階は現在募集がありません
テアトル神南 2階
物件概要
テアトル神南のテナント募集中区画
現在、空室がございません。
アクセス
テアトル神南の物件情報
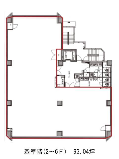
テアトル神南(渋谷区神南)は渋谷駅(B1番出口)から徒歩6分の賃貸オフィスです。2023年竣工の新築物件です。地上6階建ての外観は、白い外壁にガラス張りが美しく視認性が高いです。モノトーンの石張りで高級感あふれるエントランスにはエレベーターが1基設置されています。基準階は約93坪、室内はL字型で、一部柱がありますが動線の良いレイアウトが出来そうです。また窓が大きいため室内は明るく過ごしやすい環境です。設備面は個別空調、OAフロア、光ファイバー、男女別トイレ等が備えられています。大通りから少し入った場所にあるため周辺は比較的落ち着いた雰囲気ですが、飲食店や郵便局、各種サービスの充実した所へもすぐの利便性の高い立地です。テアトル神南は渋谷駅(B1番出口)の他に明治神宮前駅(1番出口)徒歩8分、原宿駅(西口)徒歩9分で利用も可能です。

