2階 2Aは現在募集がありません
広田代官山ビル 2階 2A
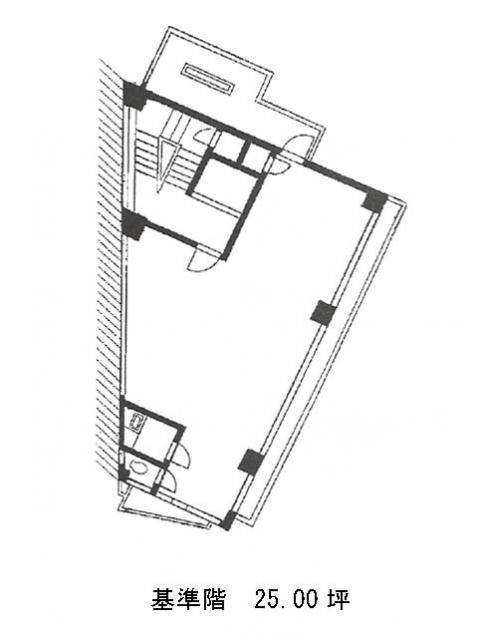
物件概要
広田代官山ビルのテナント募集中区画
現在、空室がございません。
アクセス
広田代官山ビルの物件情報
広田代官山ビル(渋谷区代官山町)は渋谷駅(新南口)から徒歩6分の賃貸オフィスです。広田代官山ビルは渋谷駅(新南口)の他に代官山駅(北口)徒歩10分、恵比寿駅(2番出口)徒歩12分で利用も可能です。

