10階は現在募集がありません
2フロア募集区画あり

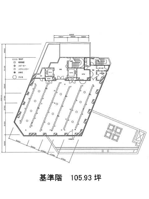
VORT恵比寿maxim 10階

前の写真 次の写真

物件概要

物件番号

180-00147-70

物件名

VORT恵比寿maxim

所在地

面積

105.93坪

賃料(共益費含)


入居日

募集終了

保証金

礼金

更新料

償却費

竣工

1989年8月

構造

SRC

規模

地上11階/地下1階

トイレ

男女別

空調

個別空調

エレベーター

セキュリティ

駐車場

耐震

新耐震基準

基準階天井高

空室延床面積

209.76坪

最寄駅

情報更新日

2026/03/26

VORT恵比寿maximのテナント募集中区画

階数 面積 賃料(共益費含む) 保証金 入居可能日 検討リスト 詳細
4 104.88坪 応相談(応相談) 応相談 2026年12月上旬
8 104.88坪 応相談(応相談) 応相談 2026年5月上旬
…新着物件

VORT恵比寿maximのアクセス

VORT恵比寿maximの物件情報

VORT恵比寿maxim(渋谷区東)は恵比寿駅(2番出口)から徒歩6分の賃貸オフィスです。
1989年8月竣工、地上11階地下1階建のビルです。新耐震基準に適合しています。外観はグレーの壁面に大きなガラス窓が並び、築年数を感じさせないモダンな雰囲気をしています。設備仕様として、EV2基・駐車場・非常階段2箇所・個別空調・貸室外の男女別トイレがあり、床は配線を床下に格納できるOAフロアを導入しています。室内は三面採光で十分な明るさがとれるでしょう。支柱が中央に無く、すっきりした形状をしています。
VORT恵比寿maximは恵比寿駅(2番出口)の他に代官山駅(東口)徒歩12分、渋谷駅(新南口)徒歩15分で利用も可能です。

近隣のエリア・駅から探す