7階は現在募集がありません
1フロア募集区画あり

グランファースト恵比寿 7階

前の写真 次の写真

物件概要

物件番号

180-00214-70

物件名

グランファースト恵比寿

所在地

面積

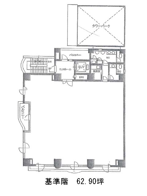
62.90坪

賃料(共益費含)


入居日

募集終了

保証金

礼金

更新料

償却費

竣工

1991年4月

構造

SRC

規模

地上8階

トイレ

男女別

空調

エレベーター

セキュリティ

駐車場

耐震

新耐震基準

基準階天井高

空室延床面積

68.74坪

最寄駅

情報更新日

2026/05/20

グランファースト恵比寿のテナント募集中区画

階数 面積 賃料(共益費含む) 保証金 入居可能日 検討リスト 詳細
5 68.74坪 3,251,402円/月(47,300円/坪) 応相談 2026年9月上旬
…新着物件

グランファースト恵比寿のアクセス

グランファースト恵比寿の物件情報

グランファースト恵比寿(渋谷区東)は恵比寿駅(2番出口)から徒歩6分の賃貸オフィスです。
当ビルは1991年竣工、新耐震基準に準拠したSRC造・地上8階建ての堅牢な構造。外観はグレーのタイル貼りで清潔感があり、管理の行き届いた印象を与えます。
貸室は約68坪の整形区画で、柱が室内に出てこない正方形に近い間取りが特長。ゾーニングしやすく、レイアウトの自由度も高いため、多様なワークスタイルに対応可能です。さらに2面窓により、採光性も期待できます。
室内には男女別トイレ・給湯室が集約されており、専有性と利便性のバランスに優れた設計。使い勝手の良さに加え、他テナントとの共用を避けたい企業にも安心感のある構成です。エレベーターは1基設置されており、各フロアのホールを経由して入室する動線で、来訪対応時にも動線が明確です。
1階にはコンビニエンスストアが入居中で、ビル利用者の利便性を高めるほか、来訪者への目印にもなります。
グランファースト恵比寿は恵比寿駅(2番出口)の他に代官山駅(東口)徒歩10分、渋谷駅(新南口)徒歩10分で利用も可能です。

近隣のエリア・駅から探す