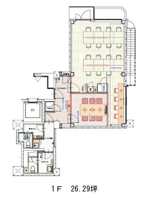
グランファースト恵比寿 1階
物件概要
グランファースト恵比寿のテナント募集中区画
| 階数 | 面積 | 賃料(共益費含む) | 保証金 | 入居可能日 | 検討リスト | 詳細 |
|---|---|---|---|---|---|---|
| 1 | 26.29坪 | 1,155,000円/月(43,934円/坪) | 応相談 | 2026年1月下旬 |
…新着物件
アクセス
グランファースト恵比寿の物件情報
グランファースト恵比寿(渋谷区東)は恵比寿駅(2番出口)から徒歩6分の賃貸オフィスです。当ビルは1991年竣工、新耐震基準に準拠したSRC造・地上8階建ての堅牢な構造。外観はグレーのタイル貼りで清潔感があり、管理の行き届いた印象を与えます。
貸室は約68坪の整形区画で、柱が室内に出てこない正方形に近い間取りが特長。ゾーニングしやすく、レイアウトの自由度も高いため、多様なワークスタイルに対応可能です。さらに2面窓により、採光性も期待できます。
室内には男女別トイレ・給湯室が集約されており、専有性と利便性のバランスに優れた設計。使い勝手の良さに加え、他テナントとの共用を避けたい企業にも安心感のある構成です。エレベーターは1基設置されており、各フロアのホールを経由して入室する動線で、来訪対応時にも動線が明確です。
1階にはコンビニエンスストアが入居中で、ビル利用者の利便性を高めるほか、来訪者への目印にもなります。グランファースト恵比寿は恵比寿駅(2番出口)の他に代官山駅(東口)徒歩10分、渋谷駅(新南口)徒歩10分で利用も可能です。

