6階は現在募集がありません
1フロア募集区画あり

道玄坂今井ビル 6階

前の写真 次の写真

物件概要

物件番号

181-00110-50

物件名

道玄坂今井ビル

所在地

面積

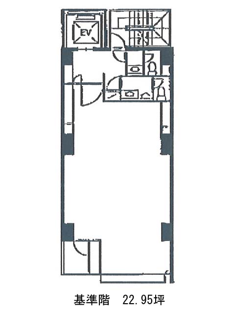
22.95坪

賃料(共益費含)


入居日

募集終了

保証金

礼金

更新料

償却費

竣工

2002年3月

構造

SRC

規模

地上10階

トイレ

男女別

空調

個別空調

エレベーター

セキュリティ

駐車場

耐震

新耐震基準

基準階天井高

空室延床面積

24.66坪

最寄駅

情報更新日

2026/02/26

道玄坂今井ビルのテナント募集中区画

階数 面積 賃料(共益費含む) 保証金 入居可能日 検討リスト 詳細
6 24.66坪 応相談(応相談) 応相談 2026年4月上旬
…新着物件

道玄坂今井ビルのアクセス

道玄坂今井ビルの物件情報

道玄坂今井ビル(渋谷区道玄坂)は渋谷駅(西口)から徒歩4分の賃貸オフィスです。
道玄坂今井ビルは渋谷駅(西口)の他に神泉駅(北口)徒歩4分で利用も可能です。

近隣のエリア・駅から探す