道玄坂今井ビル 6階
物件概要
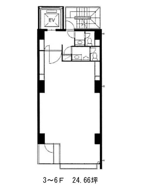
道玄坂今井ビルのテナント募集中区画
| 階数 | 面積 | 賃料(共益費含む) | 保証金 | 入居可能日 | 検討リスト | 詳細 |
|---|---|---|---|---|---|---|
| 6 | 24.66坪 | 応相談(応相談) | 応相談 | 2026年4月上旬 |
…新着物件
道玄坂今井ビルのアクセス
道玄坂今井ビルの物件情報
道玄坂今井ビル(渋谷区道玄坂)は渋谷駅(西口)から徒歩4分の賃貸オフィスです。道玄坂今井ビルは渋谷駅(西口)の他に神泉駅(北口)徒歩4分で利用も可能です。

