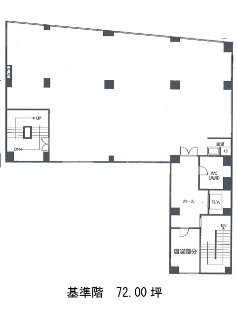
見真ビル 2階
物件概要
見真ビルのテナント募集中区画
| 階数 | 面積 | 賃料(共益費含む) | 保証金 | 入居可能日 | 検討リスト | 詳細 |
|---|---|---|---|---|---|---|
| 2 | 72.00坪 | 1,782,000円/月(24,750円/坪) | 799万円 | 即 |
…新着物件
見真ビルのアクセス
見真ビルの物件情報
見真ビル(渋谷区道玄坂)は神泉駅(北口)から徒歩4分の賃貸オフィスです。見真ビルは神泉駅(北口)の他に渋谷駅(西口)徒歩6分で利用も可能です。

