3階は現在募集がありません
1フロア募集区画あり

見真ビル 3階

前の写真 次の写真

物件概要

物件番号

181-00045-40

物件名

見真ビル

所在地

面積

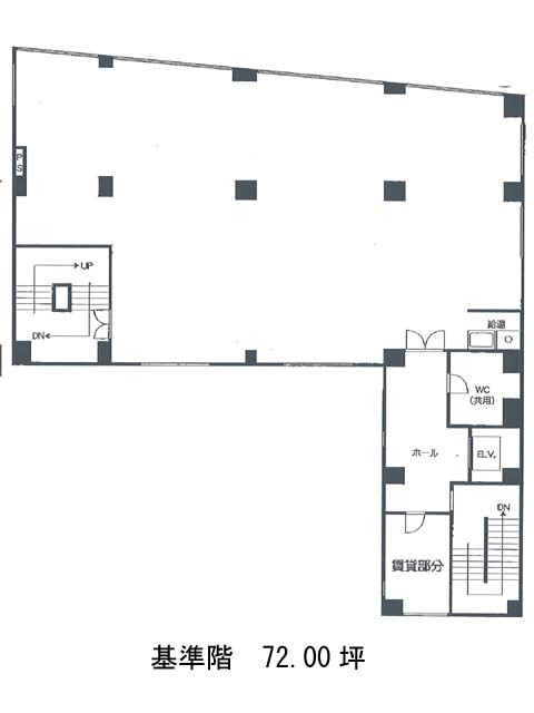
72.00坪

賃料(共益費含)


入居日

募集終了

保証金

礼金

更新料

償却費

竣工

1961年8月

構造

SRC

規模

地上7階/地下1階

トイレ

男女別

空調

個別空調

エレベーター

セキュリティ

駐車場

耐震

旧耐震基準

基準階天井高

空室延床面積

72.00坪

最寄駅

情報更新日

2026/01/05

見真ビルのテナント募集中区画

階数 面積 賃料(共益費含む) 保証金 入居可能日 検討リスト 詳細
2 72.00坪 1,782,000円/月(24,750円/坪) 799万円
…新着物件

見真ビルのアクセス

見真ビルの物件情報

見真ビル(渋谷区道玄坂)は神泉駅(北口)から徒歩4分の賃貸オフィスです。
見真ビルは神泉駅(北口)の他に渋谷駅(西口)徒歩6分で利用も可能です。

近隣のエリア・駅から探す