幡ヶ谷プラザビル 4階 B
物件概要
物件番号
183-00018-78物件名
幡ヶ谷プラザビル所在地
- 東京都渋谷区幡ヶ谷1-1-1
- アクセスマップ
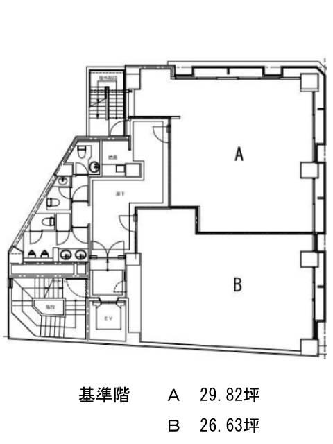
面積
26.64坪賃料(共益費含)
月額527,472円(19,800円/坪)
入居日
即保証金
3,996,000円礼金
なし更新料
新1ケ月償却費
なし竣工
1979年5月構造
SRC規模
地上9階/地下1階トイレ
男女別空調
個別空調エレベーター
有セキュリティ
駐車場
有耐震
耐震補強済み基準階天井高
2650mm空室延床面積
53.27坪情報更新日
2026/02/19幡ヶ谷プラザビルのテナント募集中区画
| 階数 | 面積 | 賃料(共益費含む) | 保証金 | 入居可能日 | 検討リスト | 詳細 |
|---|---|---|---|---|---|---|
| 4 | 26.64坪 | 527,472円/月(19,800円/坪) | 399万円 | 即 | ||
| 8 | 26.63坪 | 527,274円/月(19,800円/坪) | 399万円 | 即 |
…新着物件
幡ヶ谷プラザビルのアクセス
幡ヶ谷プラザビルの物件情報
幡ヶ谷プラザビル(渋谷区幡ヶ谷)は幡ヶ谷駅(北口)から徒歩3分の賃貸オフィスです。幡ヶ谷プラザビルは幡ヶ谷駅(北口)の他に初台駅(南口)徒歩12分、笹塚駅(出口)徒歩14分で利用も可能です。

