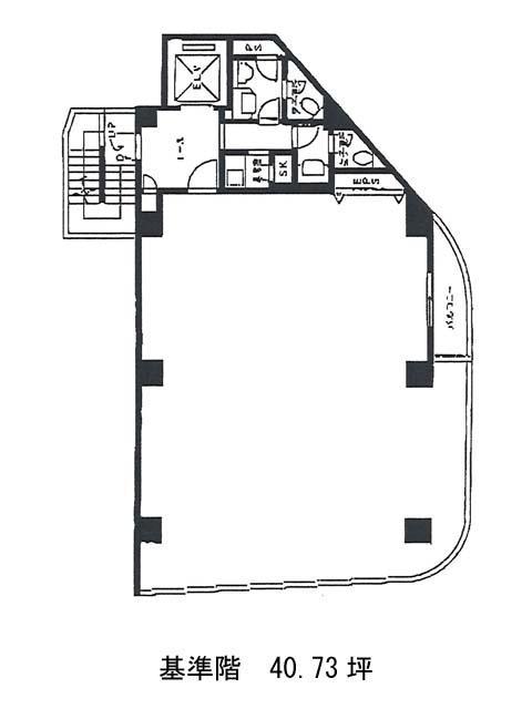
SH小林ビル 7階
物件概要
SH小林ビルのテナント募集中区画
| 階数 | 面積 | 賃料(共益費含む) | 保証金 | 入居可能日 | 検討リスト | 詳細 |
|---|---|---|---|---|---|---|
| 7 | 40.73坪 | 672,045円/月(16,500円/坪) | 366万円 | 即 |
…新着物件
アクセス
SH小林ビルの物件情報
SH小林ビル(渋谷区本町)は幡ヶ谷駅(北口)から徒歩4分の賃貸オフィスです。
SH小林ビルは幡ヶ谷駅(北口)の他に初台駅(北口)徒歩9分で利用も可能です。

