1階 Bは現在募集がありません
1フロア募集区画あり

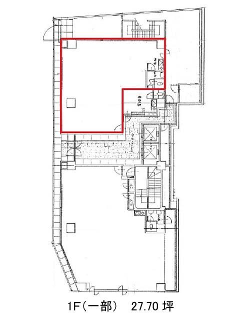
第3山田ビル 1階 B

前の写真 次の写真

物件概要

物件番号

187-00001-20

物件名

第3山田ビル

所在地

面積

27.70坪

賃料(共益費含)


入居日

募集終了

保証金

礼金

更新料

償却費

竣工

1987年10月

構造

SRC

規模

地上11階

トイレ

男女共用

空調

個別空調

エレベーター

セキュリティ

駐車場

耐震

新耐震基準

基準階天井高

空室延床面積

101.46坪

最寄駅

情報更新日

2026/04/30

第3山田ビルのテナント募集中区画

階数 面積 賃料(共益費含む) 保証金 入居可能日 検討リスト 詳細
6 101.46坪 1,562,484円/月(15,400円/坪) 1,420万円 2026年9月上旬
…新着物件

第3山田ビルのアクセス

第3山田ビルの物件情報

第3山田ビル(新宿区愛住町)は曙橋駅(A1番出口)から徒歩3分の賃貸オフィスです。
1987年竣工、新耐震基準に適合しています。地上11階建、外観はベージュの大きなタイル貼りで温かみのある色合いをしています。室内はモノクロで、スタイリッシュな内装。管理状態が良く、築年数を感じさせない清潔感があります。周辺は曙橋商店街があり、個人の飲食店や商店が多くランチやディナーにご利用頂けるでしょう。設備仕様としてEV2基・機械警備・個別空調・執務室内の男女別トイレ・非常階段2箇所があります。
第3山田ビルは曙橋駅(A1番出口)の他に四谷三丁目駅(出口)徒歩7分、若松河田駅(若松口)徒歩13分で利用も可能です。

近隣のエリア・駅から探す