第3山田ビル 10-11F
物件概要
物件番号
187-00001-83物件名
第3山田ビル所在地
- 東京都新宿区愛住町22-7
- アクセスマップ
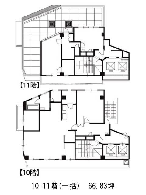
面積
66.83坪賃料(共益費含)
月額838,096円(12,541円/坪)
入居日
即保証金
7,619,288円礼金
なし更新料
なし償却費
1ケ月竣工
1987年10月構造
SRC規模
地上11階トイレ
男女別空調
個別空調エレベーター
有セキュリティ
有駐車場
無耐震
新耐震基準基準階天井高
空室延床面積
66.83坪情報更新日
2026/02/18第3山田ビルのテナント募集中区画
| 階数 | 面積 | 賃料(共益費含む) | 保証金 | 入居可能日 | 検討リスト | 詳細 |
|---|---|---|---|---|---|---|
| 10-11F | 66.83坪 | 838,096円/月(12,541円/坪) | 761万円 | 即 |
…新着物件
第3山田ビルのアクセス
第3山田ビルの物件情報
第3山田ビル(新宿区愛住町)は曙橋駅(A1番出口)から徒歩3分の賃貸オフィスです。1987年竣工、新耐震基準に適合しています。地上11階建、外観はベージュの大きなタイル貼りで温かみのある色合いをしています。室内はモノクロで、スタイリッシュな内装。管理状態が良く、築年数を感じさせない清潔感があります。周辺は曙橋商店街があり、個人の飲食店や商店が多くランチやディナーにご利用頂けるでしょう。設備仕様としてEV2基・機械警備・個別空調・執務室内の男女別トイレ・非常階段2箇所があります。第3山田ビルは曙橋駅(A1番出口)の他に四谷三丁目駅(出口)徒歩7分、若松河田駅(若松口)徒歩13分で利用も可能です。

