KDX飯田橋ビル 2階
物件概要
物件番号
190-00015-20物件名
KDX飯田橋ビル所在地
- 東京都新宿区下宮比町2-26
- アクセスマップ
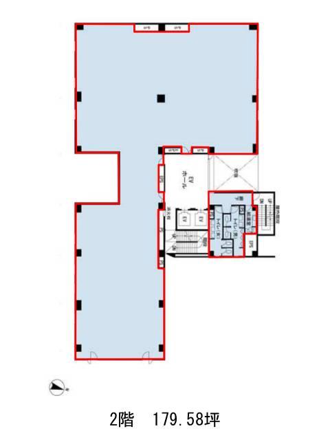
面積
179.58坪賃料(共益費含)
:応相談応相談
入居日
2026年2月上旬保証金
応相談礼金
なし更新料
なし償却費
なし竣工
1990年3月構造
SRC規模
地上8階/地下1階トイレ
男女別空調
個別空調エレベーター
有セキュリティ
有駐車場
有耐震
新耐震基準基準階天井高
2600mm空室延床面積
370.95坪情報更新日
2026/01/13KDX飯田橋ビルのテナント募集中区画
| 階数 | 面積 | 賃料(共益費含む) | 保証金 | 入居可能日 | 検討リスト | 詳細 |
|---|---|---|---|---|---|---|
| 1 | 70.61坪 | 応相談(応相談) | 応相談 | 2026年2月上旬 | ||
| 2 | 179.58坪 | 応相談(応相談) | 応相談 | 2026年2月上旬 | ||
| 6 | 66.06坪 | 応相談(応相談) | 応相談 | 2026年2月上旬 | ||
| 6 | 54.70坪 | 応相談(応相談) | 応相談 | 即 |
…新着物件
アクセス
KDX飯田橋ビルの物件情報
KDX飯田橋ビル(新宿区下宮比町)は飯田橋駅(B1番出口)から徒歩3分の賃貸オフィスです。明治通り沿いに佇むグレード感のあるオフィスビル。複数路線が乗り入れる飯田橋駅が最寄りで、駅からのアクセスもスムーズです。車寄せスペースのある長いアプローチと、石張りの重厚感あるエントランスは来訪者にも好印象。EVホールには中庭を設けており、外光を取り入れたラグジュアリーな空間設計が魅力的です。
1フロア最大約180坪の規模感で、50~110坪前後の分割区画も用意されており、幅広いニーズに対応可能。室内は家具・内装付き区画も多数あるため、初期費用を抑えつつスピーディーな入居を希望する企業にもおすすめです。男女別トイレや個別空調、機械警備、駐車場といった基本設備も整っています。KDX飯田橋ビルは飯田橋駅(B1番出口)の他に牛込神楽坂駅(A3番出口)徒歩11分、後楽園駅(1番出口)徒歩12分で利用も可能です。

