地下1階 B102は現在募集がありません
1フロア募集区画あり

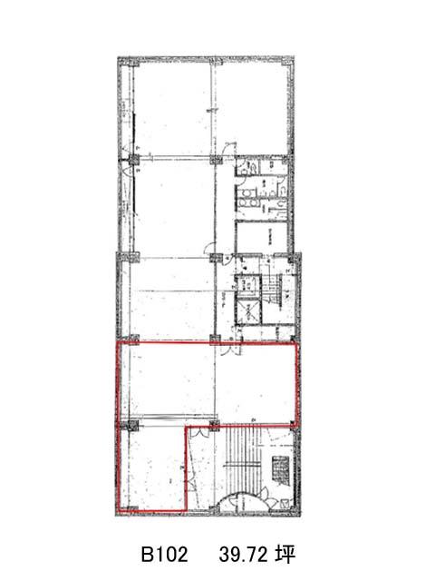
ラーズビル 地下1階 B102

前の写真 次の写真

物件概要

物件番号

198-00005-30

物件名

ラーズビル

所在地

面積

39.72坪

賃料(共益費含)


入居日

募集終了

保証金

礼金

更新料

償却費

竣工

1994年4月

構造

RC

規模

地上7階/地下1階

トイレ

男女別

空調

個別空調

エレベーター

セキュリティ

駐車場

耐震

新耐震基準

基準階天井高

空室延床面積

60.96坪

最寄駅

情報更新日

2026/01/20

ラーズビルのテナント募集中区画

階数 面積 賃料(共益費含む) 保証金 入居可能日 検討リスト 詳細
4 60.96坪 825,000円/月(13,534円/坪) 600万円 2026年2月上旬
…新着物件

アクセス

ラーズビルの物件情報

ラーズビル(新宿区原町)は牛込柳町駅(西口)から徒歩3分の賃貸オフィスです。
1992年3月竣工、新耐震基準に適合しているため、安心してご入居頂けます。特徴的な外観が印象的で、スタイリッシュでデザイン性の高い、地上7階建てRC構造のデザイナーズ物件となります。基準階坪数は約110坪、貸室内のフロアは青を基調としていて落ち着いた雰囲気です。窓は足下に及ぶ大きな窓となっているため、採光は良好です。また駐車場が併設されているので、車の利用もしやすい環境です。
ラーズビルは牛込柳町駅(西口)の他に若松河田駅(若松口)徒歩6分、早稲田駅(2番出口)徒歩12分で利用も可能です。

近隣のエリア・駅から探す