5階は現在募集がありません
2フロア募集区画あり
VORT四谷坂町/インテリジェントプラザビル 5階
物件概要
物件番号
205-00004-40物件名
VORT四谷坂町/インテリジェントプラザビル所在地
- 東京都新宿区四谷坂町12-22
- アクセスマップ
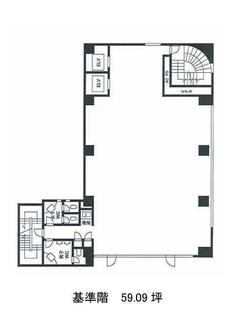
面積
59.09坪賃料(共益費含)
−入居日
募集終了保証金
−礼金
−更新料
−償却費
−竣工
1987年3月構造
SRC規模
地上8階トイレ
男女別空調
個別空調エレベーター
有セキュリティ
有駐車場
無耐震
新耐震基準基準階天井高
2600mm空室延床面積
160.98坪情報更新日
2026/02/20VORT四谷坂町/インテリジェントプラザビルのテナント募集中区画
| 階数 | 面積 | 賃料(共益費含む) | 保証金 | 入居可能日 | 検討リスト | 詳細 |
|---|---|---|---|---|---|---|
| 3 | 101.89坪 | 応相談(応相談) | 応相談 | 即 | ||
| 4 | 59.09坪 | 974,985円/月(16,500円/坪) | 443万円 | 2026年8月上旬 |
…新着物件
VORT四谷坂町/インテリジェントプラザビルのアクセス
VORT四谷坂町/インテリジェントプラザビルの物件情報
VORT四谷坂町/インテリジェントプラザビル(新宿区四谷坂町)は曙橋駅(A4番出口)から徒歩5分の賃貸オフィスです。1987年竣工。外観はシンプルなグレーを基調としておりますが、デザイン性の高さが伺える視認性の高いビルです。黒と白のツートンカラーでデザインされたエントランスホールは大変スタイリッシュな印象を受けます。エレベーターは2基設置。また空調設備の更新を行っており、その他の設備についてもビルメンテナンスが十分に行き届いています。基準階フロアは約60坪、貸室内は綺麗な長方形になっているのでレイアウトが組みやすく、自由度は高いでしょう。VORT四谷坂町/インテリジェントプラザビルは曙橋駅(A4番出口)の他に市ヶ谷駅(7番出口)徒歩9分、四ツ谷駅(3番出口)徒歩10分で利用も可能です。

